The Stonebridge Hillside Hub
Provided by Edward Cullinan Architects, nowdays Cullinan Studio
The
Stonebride Hillside Hub is a rare example of a project driven by economic,
social and environmental sustainability. The building is located in Stonebridge,
north west London in UK. The building is a innovative strategy of bringing
together a health care centre, café, commercial stores and retail unit with
mixed tenure residential units fused together by a central community facility,
fostering a strong community spirit.
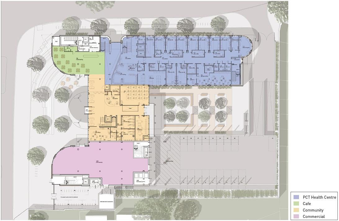
![]() |
| A plan of how the different building areas and functions are combined together. |
The
building contains 25 apartments for shared ownership, with 16 allocated parking
spaces. And 34 flats for sale to the open market, each with its own parking
space. The flats are mixture of one-, two- and three-bedroom apartments. The
apartments are designed to National Housing Scheme Development Standards and
are covered by a 12 year NHBC warranty and are rated EcoHomes 'Very Good'. The
residential apartments won the What House Silver Award for Best Starter Home
2009 and the Hub was shortlisted for the Best Housing project in the Building
Awards 2009.
The facilities and common areas have very good natural light and a nice design mixed by wood and concrete. The facility management are led by Hillside housing trust, a community-led housing association. The association rents out premises in the building to mini superstores, café and PCC and uses the regular revenue to cross fund activities and initiatives.
Design and construction
The
Stonebridge Hillside Hub was complete in 2009 after four years of work with an
area of approximately 4900 m2 and a construction cost of £17, 8
million. The design is very strong and thoughtful where they have used mixed
materials to articulate the different functions of the building. Like the
community centre is finished with a distinctive double curve zinc roof
structure, the apartments are clad in FSC certified larch timber and the health
care centre in white bricks. Throughout, the external and internal
finishes of the building are drawn from a simple, limited palette of color, texture and
materials, including wood.
Team of project
Client: The Hyde Group with Rydon Construction
Quantity Surveyor: Calford Seaden
Structural Engineer: Fife Belcher Grimsey & Partners
Services Engineer: MLM Consulting Engineers
M&E Engineer: MLM Consulting
Main Contractor: Rydon Construction
Cost Consultant: Calford Seaden
Landscape Architect: Whitelaw Turkington
Architect: Cullinan Studios or as the previously named Edward Cullinan Architects. The office was founded by the architect Ted Cullinan, and he established the office as a co-operative in 1965. Since then they've worked with many different projects and clients, They have also received many awards and from different associations, here are the awards and achievements they've received and achieved for the Stonebridge Hillside Hub.
![]() |
| Ted Cullinan |
- Civic Trust Award and Special Award for Community Impact & Engagement (2011)
- Brit Insurance Design Awards Finalist (2011)
- Building for Life Gold Standard and Award (2010)
- RICS Awards - Regeneration Award for the Stonebridge Estate inc. Stonebridge Hillside Hub (2010)
- Sustain' Magazine Award for Design & Architecture (2010)
- Building Better Healthcare Award (2010)
- Mail on Sunday British Homes Awards - Mixed-use Regeneration Development of the Year Award (2009)
- Wood Awards Structural Category - Highly Commended (2009)
- Regeneration & Renewal Awards Finalist (2009)
- Building Awards Housing Project of the Year Award Finalist (2009)
References
http://www.architecture.com/SustainabilityHub/Casestudies/7-TheStonebridgeHillsideHub.aspx
http://www.edwardcullinanarchitects.com/projects/stb_residential.html
http://webarchive.nationalarchives.gov.uk/20110107165544/http://
www.buildingforlife.org/case-studies/stonebridge/evaluation















No comments:
Post a Comment